
14.01.25 –
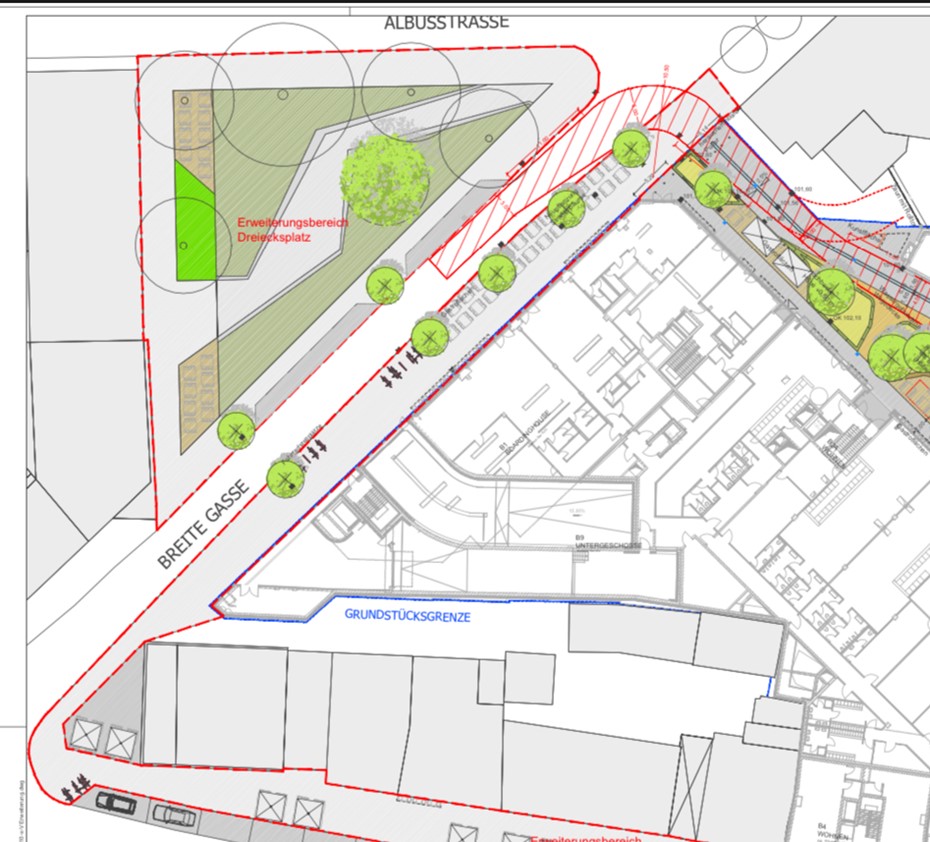
Der Magistrat wird aufgefordert, im Zuge der Wiederherstellung der Gehwege in der Breiten Gasse durch den Investor des „Main Yard“ entlang der Neubauten eine ausreichende Anzahl von Radbügeln aufstellen zu lassen, um den künftigen Bedarf für die zu erwartende Kundschaft zu decken und behinderndes Parken von PKW auf den Gehwegen wirksam zu verhindern. Außerdem soll vor gastronomischen Betrieben Platz für Sommergärten freigehalten werden.
Begründung:
Nach Fertigstellung der Neubauten und Nutzungsbeginn der Geschäfte und Gastronomie entlang der Breiten Gasse und Am Städelshof ist mit deutlich mehr Kundschaft und Radverkehr aus dem nahen Umfeld zu rechnen.
Der Magistrat soll die Gelegenheit nutzen, im Zuge der Wiederherstellung der Flächen durch den Bauherrn eine ausreichende Anzahl von Radbügeln auf dem breiten Gehweg aufstellen zu lassen. Sommergärten beleben den öffentlichen Raum und werden von Gästen der Gastronomie geschätzt. Zugleich wird verhindert, dass PKW auf den Gehwegen widerrechtlich parken.
Die Maßnahme ist im Zusammenhang mit der Pflanzung von Bäumen zu koordinieren.
Kategorie
Werde Gestalter*in Deines Stadtteils. Hast Du Vorschläge, oder möchtest wissen, was in Deinem Stadtteil passiert? Dann komm einfach vorbei.
Du willst einen spannenden Quizabend mit coolen Preisen verbringen? Du möchtest die Kandidierenden der Grünen für den Ortsbeirat 1 kennenlernen, dann komm einfach vorbei. [...]
Who: Alle Mitglieder & Interessierten Arbeitstreffen der Stadtteilgruppe - abwechselnd alle 2 Wochen digital & in Präsenz
Lockerer Online-Austausch mit den grünen Mitgliedern des Ortsbezirk 1. Für Teilnahme bitte eine kurze Mail an stg1@gruene-frankfurt: mailto:stg1@gruene-frankfurt [...]
Werde Gestalter*in Deines Stadtteils. Hast Du Vorschläge, oder möchtest wissen, was in Deinem Stadtteil passiert? Dann komm einfach vorbei.
Du willst einen spannenden Quizabend mit coolen Preisen verbringen? Du möchtest die Kandidierenden der Grünen für den Ortsbeirat 1 kennenlernen, dann komm einfach vorbei. [...]
Who: Alle Mitglieder & Interessierten Arbeitstreffen der Stadtteilgruppe - abwechselnd alle 2 Wochen digital & in Präsenz
Lockerer Online-Austausch mit den grünen Mitgliedern des Ortsbezirk 1. Für Teilnahme bitte eine kurze Mail an stg1@gruene-frankfurt: mailto:stg1@gruene-frankfurt [...]
Die Bundesregierung und Regierungskoalition von CDU, CSU und SPD unter Bundeskanzler Friedrich Merz will das Gebäudeenergiegesetz reformieren. [...]
Auf ihrer Reise nach Israel und Palästina Anfang Februar traf unsere Bundesvorsitzende Franziska Brantner Vertreter*innen der Regierungen und [...]
Die MSC hat einmal mehr gezeigt: Wir brauchen ein unabhängiges Europa. Die Rede von Bundeskanzler Merz setzte den richtigen Ton, aber die [...]