
14.01.25 –
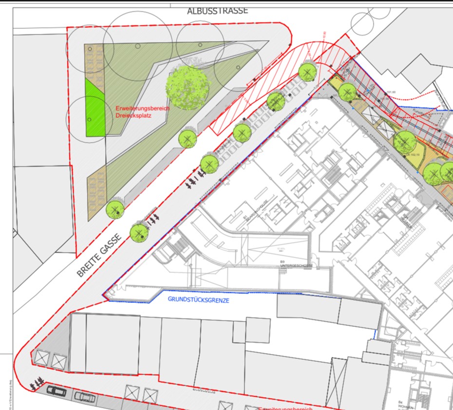
Der Magistrat wird aufgefordert, im Zuge der Wiederherstellung der Gehwege in der Breiten Gasse durch den Investor des „Main Yard“ entlang der Neubauten die maximal mögliche Anzahl von Bäumen im Gehwegbereich pflanzen zu lassen, um Schatten zu spenden und der Klimakrise entgegenzuwirken.
Begründung:
Im Zuge der Fertigstellung der Neubauten und Wiederherstellung der Flächen durch den Bauherrn soll der Magistrat eine ausreichende Anzahl von Bäumen zu pflanzen, um der sommerlichen Hitze entgegenzuwirken und das Viertel aufzuwerten. Die Machbarkeit in Bezug auf Leitungstrassen wurde bereits nachgewiesen.
Die Maßnahme ist im Zusammenhang mit der Montage von Radbügeln und der Ausweisung von Sommergärten zu koordinieren.
Kategorie
Werde Gestalter*in Deines Stadtteils. Hast Du Vorschläge, oder möchtest wissen, was in Deinem Stadtteil passiert? Dann komm einfach vorbei.
Du willst einen spannenden Quizabend mit coolen Preisen verbringen? Du möchtest die Kandidierenden der Grünen für den Ortsbeirat 1 kennenlernen, dann komm einfach vorbei. [...]
Who: Alle Mitglieder & Interessierten Arbeitstreffen der Stadtteilgruppe - abwechselnd alle 2 Wochen digital & in Präsenz
Lockerer Online-Austausch mit den grünen Mitgliedern des Ortsbezirk 1. Für Teilnahme bitte eine kurze Mail an stg1@gruene-frankfurt: mailto:stg1@gruene-frankfurt [...]
Werde Gestalter*in Deines Stadtteils. Hast Du Vorschläge, oder möchtest wissen, was in Deinem Stadtteil passiert? Dann komm einfach vorbei.
Du willst einen spannenden Quizabend mit coolen Preisen verbringen? Du möchtest die Kandidierenden der Grünen für den Ortsbeirat 1 kennenlernen, dann komm einfach vorbei. [...]
Who: Alle Mitglieder & Interessierten Arbeitstreffen der Stadtteilgruppe - abwechselnd alle 2 Wochen digital & in Präsenz
Lockerer Online-Austausch mit den grünen Mitgliedern des Ortsbezirk 1. Für Teilnahme bitte eine kurze Mail an stg1@gruene-frankfurt: mailto:stg1@gruene-frankfurt [...]
Die Bundesregierung und Regierungskoalition von CDU, CSU und SPD unter Bundeskanzler Friedrich Merz will das Gebäudeenergiegesetz reformieren. [...]
Auf ihrer Reise nach Israel und Palästina Anfang Februar traf unsere Bundesvorsitzende Franziska Brantner Vertreter*innen der Regierungen und [...]
Die MSC hat einmal mehr gezeigt: Wir brauchen ein unabhängiges Europa. Die Rede von Bundeskanzler Merz setzte den richtigen Ton, aber die [...]